巨奢网 首页 名表图片鉴赏 查看内容

成都蔚蓝卡地亚湖滨一号怎么样值得买吗?售楼热线丨项目情况丨...

2023-10-10 09:00| 发布者: fuwanbiao| 查看: 492| 评论: 0

摘要: 【蔚蓝卡地亚-湖滨一号】售楼部热线:028-84385818(预约看房)【蔚蓝卡地亚-湖滨一号】开发商顾问TEL:19983517822(微信同号)Vip欢迎来电预约——匠心钜制恭迎品鉴. 如今住宅市场已然走向深秋,不温不火,再也不 ...

【蔚蓝卡地亚-湖滨一号】售楼部热线:028-84385818(预约看房)


【蔚蓝卡地亚-湖滨一号】开发商顾问TEL:19983517822(微信同号)


Vip欢迎来电预约——匠心钜制恭迎品鉴.


如今住宅市场已然走向深秋,不温不火,再也不复往日喧嚣。据中原地产研究中心最新统计,2019年前8月,全国房地产调控政策高达367次,同比上涨17%,而在6月单月,全国各地楼市政策的调控频率更是高达60次之多。如此全面收紧的市场态势,自是引得大批投资资金纷纷退场。不过,有的城市退得是干净利落唯恐套牢,有的却是不情不愿伺机再动——成都自然属于后者。原因很简单,作为新一线龙头城市,成都有着远超其他城市的发展潜力。近日,克尔瑞发布《2019年中国城市房地产市场投资前景研究报告》,在房地产投资前景前50名城市榜单中,成都名列第五,位于北上广深四大老牌一线城市之后。城市价值的持续提升,推动了土地价值的水涨船高。由此,高端公寓产品以其可观的投资回报率,渐渐走进了一众投资客群的视野。不过可惜的是,优质公寓总是可遇不可求,需要千挑万选。


怡心湖顶豪-蔚蓝卡地亚湖滨一号项目资料户型一览!!!

成都蔚蓝卡地亚湖滨一号怎么样值得买吗?售楼热线丨项目情况丨...


【项目参数】


占地:怡心湖占地1400亩 湖面占地500亩


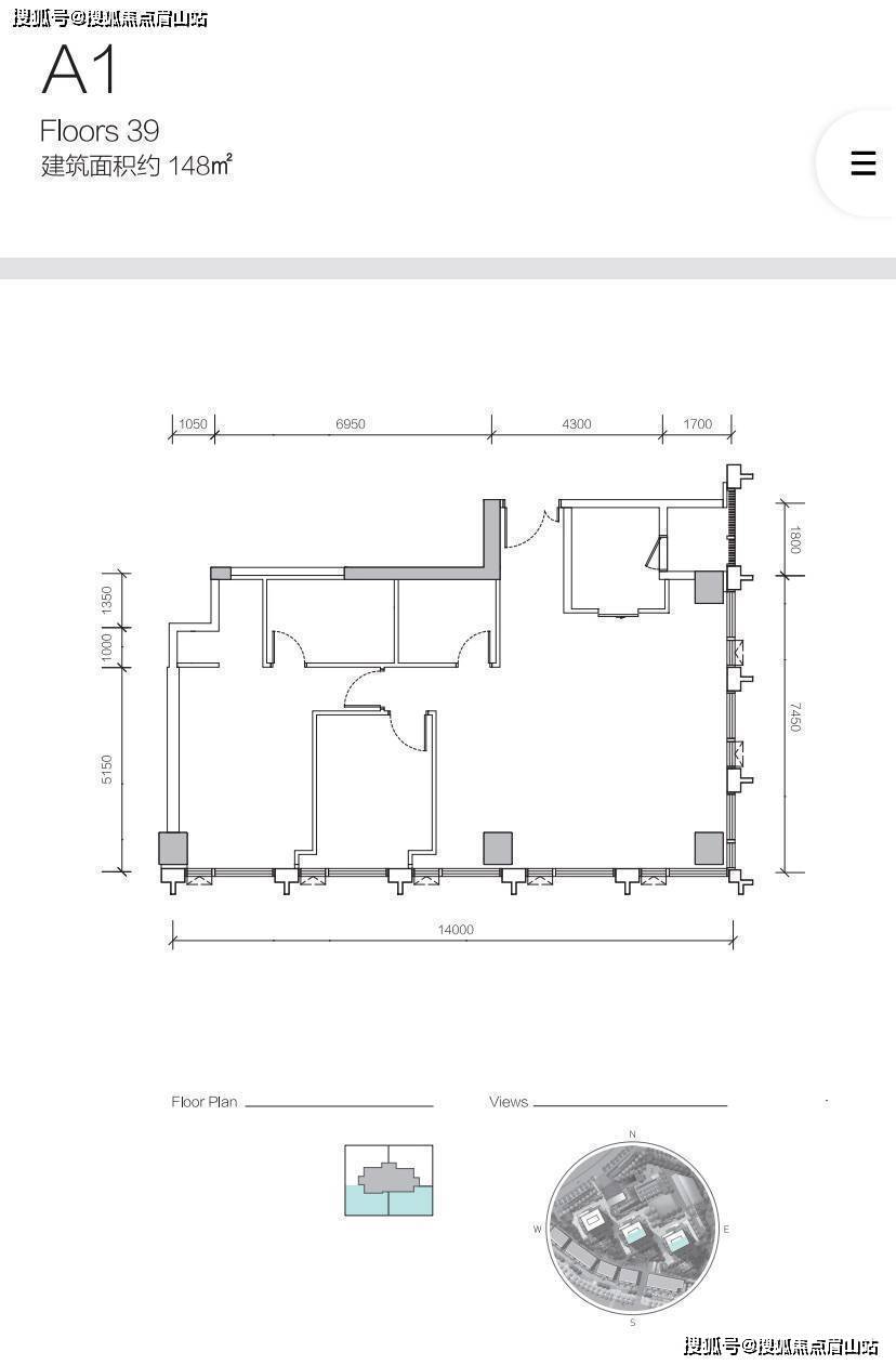
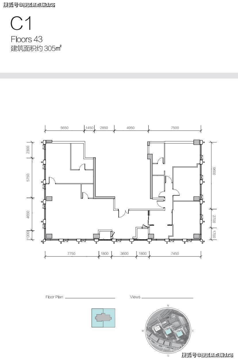
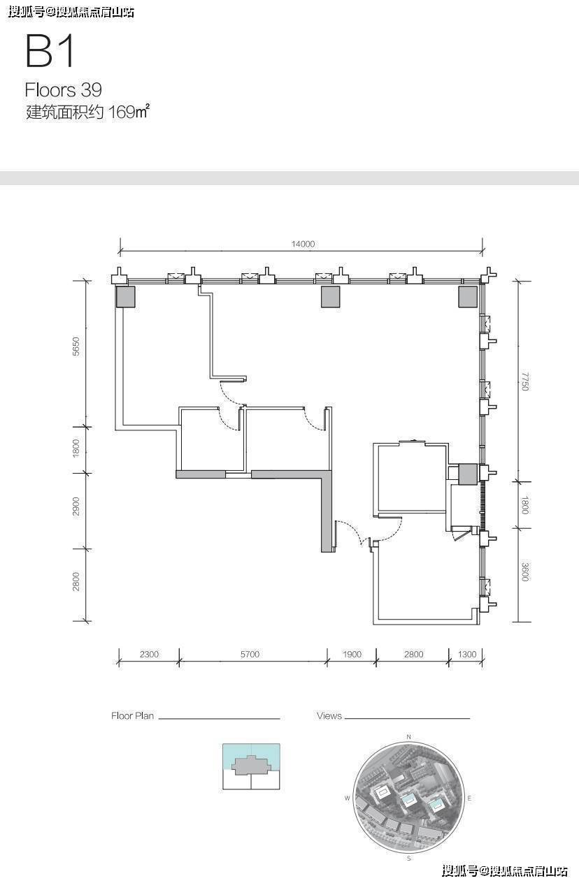
面积:148-169 平、305平


价格:2-3万 总价区间 350-420万


物管费:6元


公摊:26%


梯户比:3T4户


付款方式:按揭5成、全款


交付标准:精装


交房时间:2024年底


本次推出 A 区 2、3 栋产品,首批次仅剩余50套房源。2、3 栋都是 3 梯 4 户布局,每个户型均享受 270 度采光。


【区域价值】成都向南发展的大方向是众所周知的,而向南发展的进程中呈现了特别明显的干道经济格局,沿着天府大道的高新南区和国家级新区天府新区都取得了令人瞩目的成绩,但同时,随着城市发展的进阶以及人口的增长,已经出现了中轴饱和,土地资源稀缺等发展瓶颈。在这样的城市发展进程下,怡心湖作为大天府新区的范畴,崛起是必然的趋势,也是成都作为国家级中心城市发展赋予的使命。怡心湖区域整体规划呈 7 字形分布,处于“四横三纵”的交通网络中。是成都向南发展最热门的片区之一。从区位上看,怡心湖“东接天府新区直管区,西侧连空港高新技术产业功能区,南临成都天府国际生物城,北靠五环路,东南西北均是成都最优质的资源,区位优势十分明显。我们可以看到,从华府板块开始,经双流航空自贸区南下,怡心湖、牧马山、天府国际生物城等重磅板块一路串联,拥有非常强的城市发展导向。并且怡心湖正好处在核心枢纽湖区的位置。沿剑南大道往北驾车 15 公里直达高新区金融城。沿五环路往东驾车 8 公里直达天府新区总部商务区。

成都蔚蓝卡地亚湖滨一号怎么样值得买吗?售楼热线丨项目情况丨...

成都蔚蓝卡地亚湖滨一号怎么样值得买吗?售楼热线丨项目情况丨...

成都蔚蓝卡地亚湖滨一号怎么样值得买吗?售楼热线丨项目情况丨...


配套:整个天府怡心湖板块秉承配套先行的理念,目前商业配套已经非常成熟。蔚蓝卡地亚打造的文化艺术中心、双五星级酒店、北岸商业、南岸商业、以及地铁商业还有旁边的红星美凯龙、日航酒店、伊藤洋华堂、中海环宇坊等,都为这里提供了丰富的艺术配套、生活配套、购物休闲配套。8 公里车程到天府新区的大悦城、蔚蓝卡地亚打造的花园城国际度假中心、以及凯悦酒店和安达仕酒店。


【产品价值】

成都蔚蓝卡地亚湖滨一号怎么样值得买吗?售楼热线丨项目情况丨...

成都蔚蓝卡地亚湖滨一号怎么样值得买吗?售楼热线丨项目情况丨...

成都蔚蓝卡地亚湖滨一号怎么样值得买吗?售楼热线丨项目情况丨...


由于整体规划亮点,每个组团的均好性非常强,各具优势。国际化生活方式的构建不仅要有优雅宜人的景观环境,还需营造出友善、健康的观念和社群意识。首批次推出的湖滨 1 号,位于东区 A 区,楼下就是地铁 5 号线、19 号线站点,北侧 100米处是文化艺术中心,东北紧邻 6.5 万平米叠水公园,与公园湖景仅 200 米直线距离。是非常绝佳的位置。「蔚蓝湖滨 1 号」可享受三重配套:


第一重:公共配套——怡心湖片区的交通、购物、酒店配套,以及驱车 10 分钟即可享受到高新区或天府总部商务区的购物、休闲、商务配套。


第二重:湖滨城市配套——下楼即可享受蔚蓝湖滨城打造的文化艺术中心、双五星级酒店、南岸商业和地铁商业,A 组团紧邻文化艺术中心,到达湖面北侧直线距离仅 200 米。东北侧紧邻跌水公园私享 6.5 万平米的城市绿洲;南侧紧邻地铁 5 号线、19 号线出口,与地铁无缝接驳。下楼即拥有公园、文化艺术、商业、地铁轨道交通等丰富配套。


第三重:专属配套——蔚蓝湖滨 1 号业主的专属配套:3 万平米中庭景观,长达 25 米独立泳池会所、极具仪式感的五星级入户大堂,并配以健身房、咖啡区、阅读空间等。


【户型图】

成都蔚蓝卡地亚湖滨一号怎么样值得买吗?售楼热线丨项目情况丨...

成都蔚蓝卡地亚湖滨一号怎么样值得买吗?售楼热线丨项目情况丨...

成都蔚蓝卡地亚湖滨一号怎么样值得买吗?售楼热线丨项目情况丨...


看房安排专车、一对一服务,分析.


市区、免费接送、让你买房更省心.


【蔚蓝卡地亚-湖滨一号】售楼部热线:028-84385818(预约看房)


【蔚蓝卡地亚-湖滨一号】开发商顾问TEL:19983517822(微信同号)


Vip欢迎来电预约——匠心钜制恭迎品鉴.


【样板间】

成都蔚蓝卡地亚湖滨一号怎么样值得买吗?售楼热线丨项目情况丨...

成都蔚蓝卡地亚湖滨一号怎么样值得买吗?售楼热线丨项目情况丨...

成都蔚蓝卡地亚湖滨一号怎么样值得买吗?售楼热线丨项目情况丨...

成都蔚蓝卡地亚湖滨一号怎么样值得买吗?售楼热线丨项目情况丨...

成都蔚蓝卡地亚湖滨一号怎么样值得买吗?售楼热线丨项目情况丨...

成都蔚蓝卡地亚湖滨一号怎么样值得买吗?售楼热线丨项目情况丨...

成都蔚蓝卡地亚湖滨一号怎么样值得买吗?售楼热线丨项目情况丨...

成都蔚蓝卡地亚湖滨一号怎么样值得买吗?售楼热线丨项目情况丨...

成都蔚蓝卡地亚湖滨一号怎么样值得买吗?售楼热线丨项目情况丨...

成都蔚蓝卡地亚湖滨一号怎么样值得买吗?售楼热线丨项目情况丨...


项目样板间已开放


期待与您见面


看房安排专车、一对一服务,分析.


市区、免费接送、让你买房更省心.


【蔚蓝卡地亚-湖滨一号】售楼部热线:028-84385818(预约看房)


【蔚蓝卡地亚-湖滨一号】开发商顾问TEL:19983517822(微信同号)


Vip欢迎来电预约——匠心钜制恭迎品鉴.


免责声明:


以上内容仅作为邀约邀请,涉及的图片为部分区域实拍图和美学畅想图,具体内容请以现场公示和合同约定为准;本资料部分图片来源于网络,如有侵权请联系我们删除。



路过

雷人

握手

鲜花

鸡蛋
已有 0 人参与

会员评论

 名表回收网手机版

官网微博:名表回收网服务平台

今日头条二维码 1 微信公众号二维码 1 抖音小程序二维码 1
浙江速典奢贸易有限公司 网站经营许可证 备案号:浙ICP备19051835号2012-2022
名表回收网主要专注于手表回收,二手名表回收/销售业务,可免费鉴定(手表真假),评估手表回收价格,正规手表回收公司,浙江实体店,支持全国范围上门回收手表
返回顶部