巨奢网 首页 名表图片鉴赏 查看内容

2023龙华鸿荣源壹成中心十区(鸿荣源壹成中心十区)首页 ...

2023-4-25 09:13| 发布者: fuwanbiao| 查看: 268| 评论: 0

摘要: 龙华壹城中心最后一期十区住宅产品,面积为85~94平米(精装),项目已经开放园林及创意展示空间(样板间),2022年5月份已经正式开盘!深圳鸿荣源壹成中心开发商售楼处咨询/预约热线 400-811-3080温馨提示:因疫情尚 ...

龙华壹城中心最后一期十区住宅产品,面积为85~94平米(精装),项目已经开放园林及创意展示空间(样板间),2022年5月份已经正式开盘!

2023龙华鸿荣源壹成中心十区(鸿荣源壹成中心十区)首页 ...


深圳鸿荣源壹成中心开发商售楼处咨询/预约热线 400-811-3080

温馨提示:因疫情尚未结束,看房请提前预约,请戴好口罩,做好疫情防护,感谢您的配合!


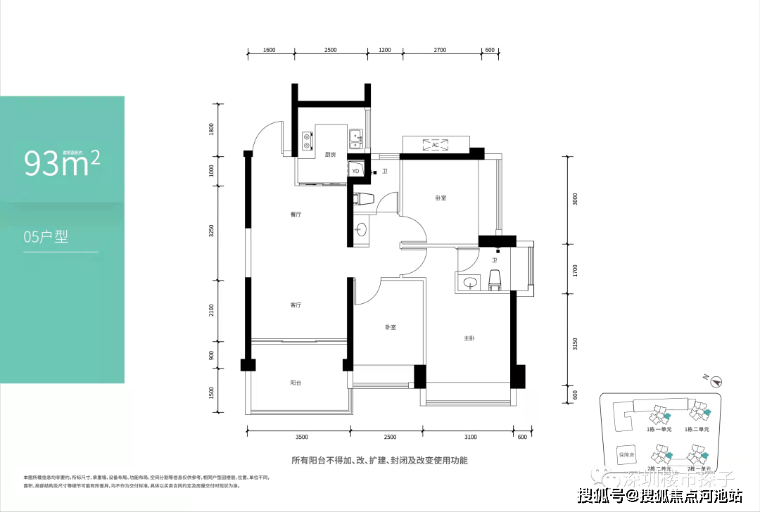
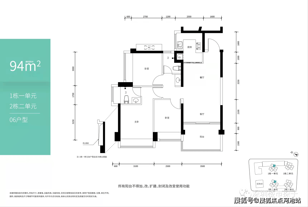
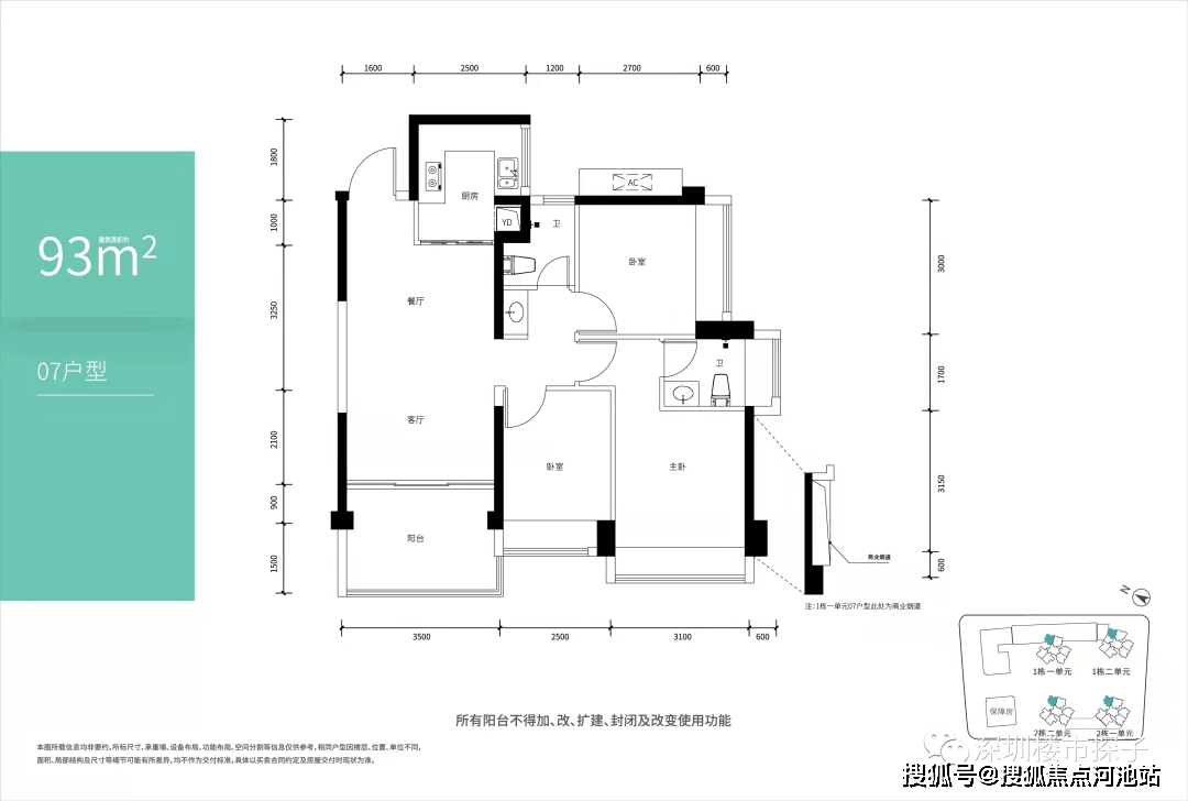
户型图:

2023龙华鸿荣源壹成中心十区(鸿荣源壹成中心十区)首页 ...

2023龙华鸿荣源壹成中心十区(鸿荣源壹成中心十区)首页 ...

2023龙华鸿荣源壹成中心十区(鸿荣源壹成中心十区)首页 ...

2023龙华鸿荣源壹成中心十区(鸿荣源壹成中心十区)首页 ...

2023龙华鸿荣源壹成中心十区(鸿荣源壹成中心十区)首页 ...

2023龙华鸿荣源壹成中心十区(鸿荣源壹成中心十区)首页 ...

2023龙华鸿荣源壹成中心十区(鸿荣源壹成中心十区)首页 ...


户型为84-95平米,可单击图片看原图


户型已出炉,85-94平米均为标准三房两厅两卫,且是壹成中心项目首个带精装交付的,参考去年璞誉府价格,此次带装修可能会大概率高个装修费用(具体以备案为准)


320万平建面 在龙华造一座城

2023龙华鸿荣源壹成中心十区(鸿荣源壹成中心十区)首页 ...


大社区体量比较大,随之带来的也是周边的配套丰富,就连园林规模,也会比那些小体量楼盘更加大。也因为大社区的居住舒适感相对较强,很多投资客也比较喜欢把大社区,小户型作为投资首选条件之一。深圳50万平建面以上的大社区不少,但却没有什么楼盘敢称自己为城。小编这里就要介绍一个,就是位于龙华的鸿荣源壹成中心花园第十区。


项目简介


鸿荣源·壹成中心花园占地约1/2平方公里,配套建面约60万㎡旗舰商业集群壹方天地,目前山姆会员店、壹方天地E区、A区、B区已经开业,逾300家高端品牌进驻,超体万象繁华启幕!


鸿荣源·壹成中心花园自入市以来持续引领楼市排行榜,本次即将推出的壹成中心十区,是壹成中心位置的典藏住区。位于壹成中心最靠近地铁位置,便捷享受五大主题旗舰商业,拥有壹成中心大面积中轴园林景观面,超200米阔绰楼间距,低密舒适,从梯户比、建筑设计、用材用料上都是全系升级,一步繁华,入则静谧。


壹成中心十区简介 楼盘信息

2023龙华鸿荣源壹成中心十区(鸿荣源壹成中心十区)首页 ...


项目位于龙华区鸿荣源壹方天地A区东北面,紧邻4号线龙华站,占据成熟超体商圈之上,繁华生活一触及达。壹成中心花园占地约1/2平方公里,是鸿荣源沉淀十年打造的超百万恢弘综合体,集住宅、商业、商务等多元业态于一体。十区规划建筑面积约29万㎡,绿化率40%,总户数1056户。


【项目基础指标】


【项目名称】:鸿荣源壹城中心十区


【总占地面积】:约130万㎡


【总建筑面积】:约320㎡


【可售房源】:1056套(十区)


【户型面积】:约85-94-㎡


【车位比例】:待定


【交房标准】:精装交付


【产权年限】:70年


【项目地址】:龙华区建设路与东环路交汇处


备注:以上数据仅供参考,目前较多详细资料未出,所有内容以政府部门最终审定文件及商品买卖合同为准


目前工程状态:

2023龙华鸿荣源壹成中心十区(鸿荣源壹成中心十区)首页 ...

2023龙华鸿荣源壹成中心十区(鸿荣源壹成中心十区)首页 ...


※展厅※

2023龙华鸿荣源壹成中心十区(鸿荣源壹成中心十区)首页 ...


项目配套解析


十区距离地铁跟九区均为最近的一期


交通配套

2023龙华鸿荣源壹成中心十区(鸿荣源壹成中心十区)首页 ...


壹成中心十区临近地铁4号线龙华站为620米,步行为9分钟左右,相对与九区,是最近地铁的区域


一直以来,龙华在深圳置业者心中仍然保持着“福田后花园”的地位,但龙华毗邻福田中心区的优异地理条件。


商业配套


商业配套兑现:龙华壹方天地万象生活正不断兑现中


2021年10月10号,体量最大的25万㎡龙华壹方城正式开业,2018年9月21日龙华壹方天地正式开业,共引进商家品牌147家,大牌商家齐聚,其中首进华南、深圳品牌近10家,首进龙华品牌逾50家,这种超规模体量高端商业的呈现,引领片区高端商业旗舰,龙华壹方天地不断以惊喜刷新大家对壹成片区的认知。


可以想象,在不久的将来,龙华壹方天地五大主题商业全面开业后,将大力提升项目整体品质,同时为片区居民带来更加崭新的综合性高端生活场所。

2023龙华鸿荣源壹成中心十区(鸿荣源壹成中心十区)首页 ...


教育配套


01.龙华第二实验学校


(由于项目为期房,需以入住后划大学区为准)


鸿荣源·壹成中心花园目前拥有1所九年一贯制学校和3所幼儿园(大学区,积分入学),其中九年一贯制公立学校龙华第二实验学校已经于2018年第四季度开学。


龙华区第二实验学校在营造良好的教育生态,校园生活充满创新精神的同时,又富含人文精神与气质,真正成为一所科技教育与人文教育相互融合、培养具有高度科学精神和人文精神协调发展的创新人才的素质教育示范学校。


02.创新实验学校开学

2023龙华鸿荣源壹成中心十区(鸿荣源壹成中心十区)首页 ...


缓解上学压力:2019年秋已正式开学,深圳市龙华区创新实验学校,是龙华区教育局下属九年一贯制学校,位于龙华区龙华街道鸿创路。学校占地2.1万平方米,其中小学部1.1万平方米,初中部1万平方米;小学部建筑面积3.1万平方米,初中部建筑面积3万平方米。


学校办学总规模为60个教学班,其中初中24个教学班,小学36个教学班。


目前初中部正在建设中..........


区域发展


周边旧改项目多


壹成中心除了自身是深圳在建的最大旧改综合体,周边涵括了中洲、海岸城、保利、德业基、卓越等多个超百万平米的大型综合体旧改项目。未来必能带动龙华老城区的全面发展。

2023龙华鸿荣源壹成中心十区(鸿荣源壹成中心十区)首页 ...


早先深圳房地产研究中心主任王锋认为:未来5年,深圳新建住房用地的供应,主要是在中西部和东部这两个区域。中部龙华今后高端的住宅会多一些,西部片区是中高端和普通住宅,东部是普通住宅为主。


这也就意味着,龙华的配套已趋成熟,中高端市场趋于饱和后,龙华将再度进阶。


作为龙华的标杆楼盘,壹成中心在龙华进阶的道路上也留下浓墨重彩的一笔。


品质标杆!


豪宅专家鸿荣源匠心打造

2023龙华鸿荣源壹成中心十区(鸿荣源壹成中心十区)首页 ...


鸿荣源是深耕深圳40年的老牌品质开发商,在小区的楼栋布局上,均采用了围合式布局。


320万平超体, 实足一座城。


项目点评:壹城中心作为龙华最大的综合体项目,可以说拥有最全面的配套,其中本次户型比较符合刚需购房者,二手房市场,这区比较近商业与地铁,与九区,7区的二手做对标,二手大概成交价格在8-9万左右,具体备案价格未出,具体打新价值还需看价格值,龙华中隶属配套最为齐全壹成中心,加上这次户型面积贴近刚需,还是有很大的吸引力。


【龙华壹城中心十区开发商售楼处咨询/预约专线:400-811-3080(中介勿扰)】

温馨提示:因疫情尚未结束,看房请提前预约,请戴好口罩,做好疫情防护,感谢您的配合!


免责声明:我们致力于保护作者版权,转载或引用仅为传播楼盘更多信息,本文部分图片可能来源于网络,无法核实其真实出处,如涉及侵权请联系我们并及时配合处理;



路过

雷人

握手

鲜花

鸡蛋
已有 0 人参与

会员评论

 名表回收网手机版

官网微博:名表回收网服务平台

今日头条二维码 1 微信公众号二维码 1 抖音小程序二维码 1
浙江速典奢贸易有限公司 网站经营许可证 备案号:浙ICP备19051835号2012-2022
名表回收网主要专注于手表回收,二手名表回收/销售业务,可免费鉴定(手表真假),评估手表回收价格,正规手表回收公司,浙江实体店,支持全国范围上门回收手表
返回顶部