售楼处热线:028-84385818【售楼中心】 置业顾问:18613205563(微信同号)加微信请备注楼盘名称
预约最新优惠 售楼处直销【内部房、内部价优惠】!中介勿扰!
预约看房享免费看房车接送
公寓房的单价与住宅相比相对低一些,它的居住功能比较齐全,对于刚进入社会的年轻人而言,既节省了资金,又保证了生活质量。此外,公寓房的位置一般都比较好,周围的商业、生活配套设施都比较齐全,甚至有些公寓本身就规划的是一个商业综合体。成熟的交通配套和商业配套让生活更加便利,而且能够吸引大量的人流量。并且公寓房不限购,这是很多人考虑公寓房的原因之一。
【产品基础信息】
面积及成交价格: 148平米套二:280-330万,168平米套二:350-480万(可变套三),305-310平米:800-1100万 ,630平米1层1户限量定制:1500-2200万,单价1.8-3.5万/平米
物业费:6元,梯户比:3梯1户/3梯2户/3梯4户,奢华空间享受,每一户畅享270—360度全景视野,层高:3.4米-3.9米阔尺空间感,39-45层
【区域】城南黄金左轴C位的“天府怡心湖”板块中心,北承高新区金融城板块,南接天府新区总部商务区,西临航空港自贸区+天府国际生物城
【交通】: TOD多维立体交通主干道剑南大道+五环路: 10-20分钟可达高新区金融城板块+天府新区中央商务区,5号+19号线双地铁枢纽,直接接驳双机场
【规划+环境+配套】沿湖2.7km湖岸线国际化地标建筑群,建筑、灯光、商业、室内、公园规划等均由全球顶级设计师团队倾力打造!(SCDA,PLD,BIG,WATG,TCDL),1000亩湖滨公园,500亩辽阔湖域景观,,三大商业配套:北岸商业+南岸商业+地铁枢纽商业集群,国际文化艺术新地标:湖滨文化艺术中心,新加坡国宝级设计大师曾仕乾先生设计,双国际五星级酒店配套:凯悦Alila阿丽拉+凯悦尚萃(全球十大酒店管理集团品牌)

独立住区【蔚蓝湖滨1号】新加坡国宝设计大师SooKChan成就时代之作,艺术建筑,公建化建筑立面,经典隽永;
独立住区.静物景观:灵感源自蒙德里安,3栋楼即享私密独立超大中庭静物景观;
国际精装风格公区:每栋楼都拥有星级大堂、独立泳池会所、健身房瑜伽室、咖啡区图书区,足不出户即可满足日常健身、休闲、社交等需求;
国际品质精装配置:斯麦格、杜拉维特、汉斯格雅等国际品牌配置,诠释顶级服务式产品非凡气度,尽享湖滨之畔的国际化生活方式;

【星级服务团队】管家服务:入室保洁、定制洗衣、房屋保养、托管服务、家私皮具及石材地板养护、虫害防治、居室主题布置、宠物植物照料等,星级配套:商务中心服务、恒温游泳、健身中心、大堂吧,定制服务:私人定制家宴、定制派对、会议及宴会服务,代行服务:代租服务、出行预约、鲜花预定等,礼宾及安保服务:湖滨艺术中心VIP服务、酒店预订、物品行李寄存、24小时安保巡逻、叫车服务等

【价值汇总】品牌价值:蔚蓝卡地亚是身份的象征,更是品质的保证;城市价值:全球湖滨城市新名片(业态涵盖星级酒店,企业公馆,写字楼宇,国际艺展中心及国际化湖滨商业);区域价值:城南核心C位、天府怡心湖千亩湖滨公园,收藏稀缺资源;投资价值:高端不动产是财富累积的首选,更是抵御风险的投资利器;
拥有蔚蓝湖滨城,您拥有的不止是一套房而是一座城; 更是拥有国际化生活方式。

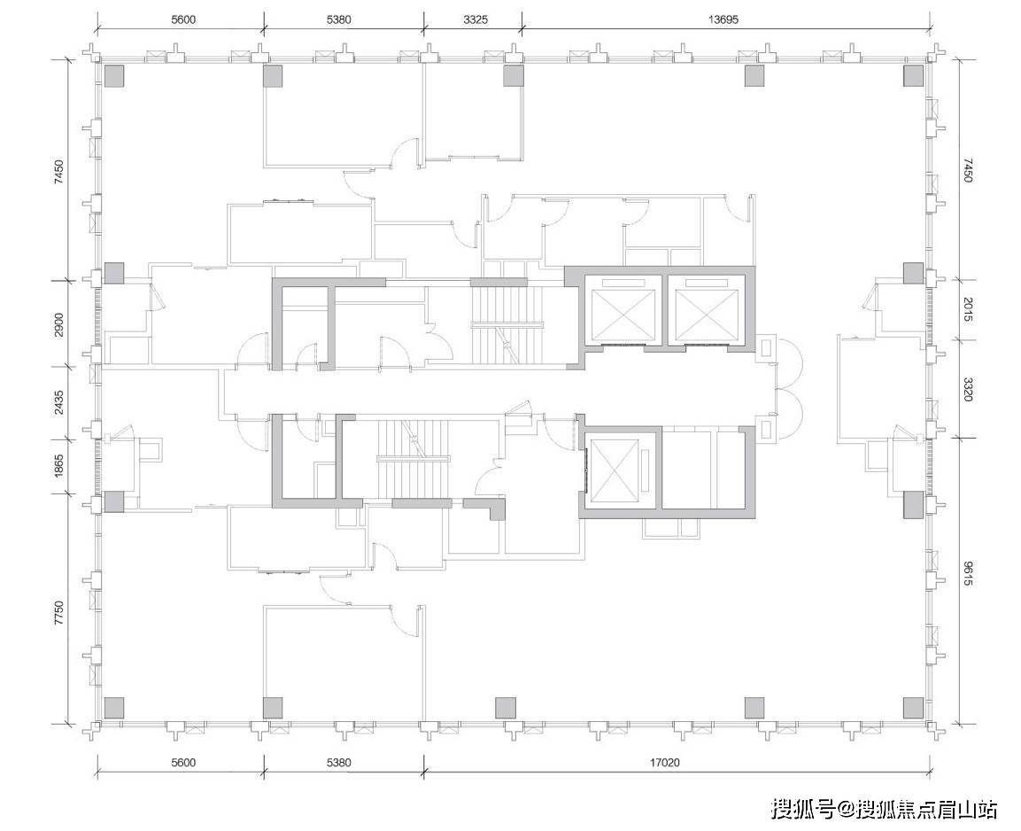
【户型鉴赏】



一户一层,整层630㎡




售楼处热线:028-84385818【售楼中心】 置业顾问:18613205563(微信同号)加微信请备注楼盘名称
预约最新优惠 售楼处直销【内部房、内部价优惠】!中介勿扰!
预约看房享免费看房车接送